Deluxe Barndominium with 2-Story Living Room (Floor Plans)
Specifications
- Area: 2,311 sq. ft.
- Bedrooms: 3
- Bathrooms: 2.5
- Stories: 2
- Garages: 2
Welcome to the gallery of photos for a Deluxe Barndominium with a 2-Story Living Room. The floor plans are shown below:



Watch the video below for a tour of this barndominium house plan:





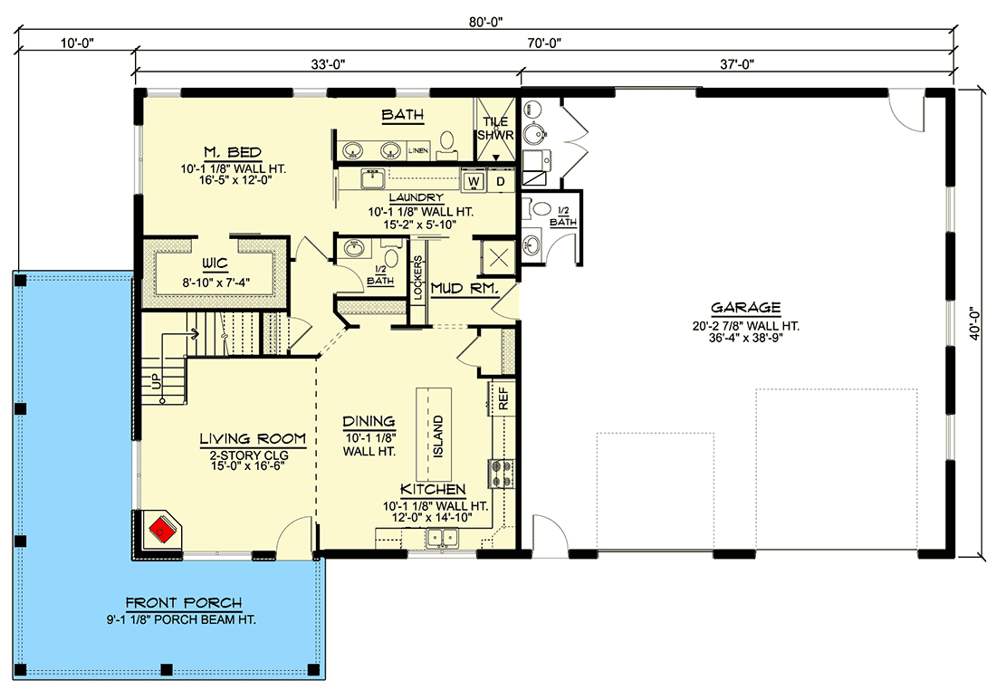
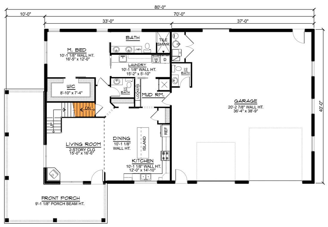
The exterior of this deluxe Barndominium-style house plan (constructed using stick-framing) features board and batten siding that emulates the ribbed metal roof. This design concept is becoming increasingly popular across rural areas.
On the right side of the design, you’ll find a spacious 1,480-square-foot garage. This garage includes a convenient powder bath, a large overhead door on the front, and a barn door at the rear.
Encircling the living room is a wraparound porch that seamlessly connects to the eat-in kitchen, creating a fantastic layout for hosting gatherings and events.
The master bedroom, situated on the main level, boasts an attached bathroom with a tiled shower. It also offers a convenient shortcut to the laundry room for added convenience.
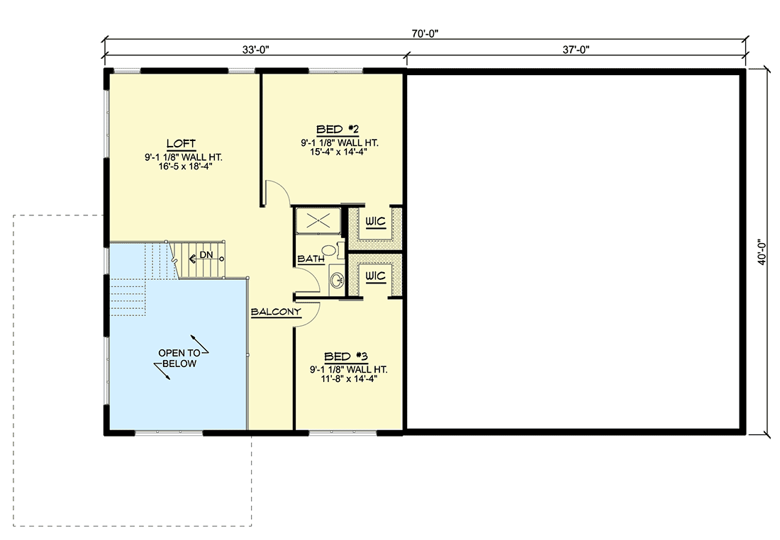
Venturing upstairs, you’ll encounter a generously sized loft area. Additionally, the second and third bedrooms, which share a full bath, are also located on this level.
The exterior finish of the house is specified to feature 24″ vertical board and batten cement board siding, further enhancing its visual appeal and charm.
=> Looking for custom Barndominium house plans? Click here to fill out our form, a member of our team will be in touch.
