3-Bedroom 1,920 Sq. Ft. Barn Style Home with Plenty of Garage/Storage Space (Floor Plans)
Specifications
- Area: 1,920 sq. ft.
- Bedrooms: 3
- Bathrooms: 3
- Stories: 2
- Garages: 3
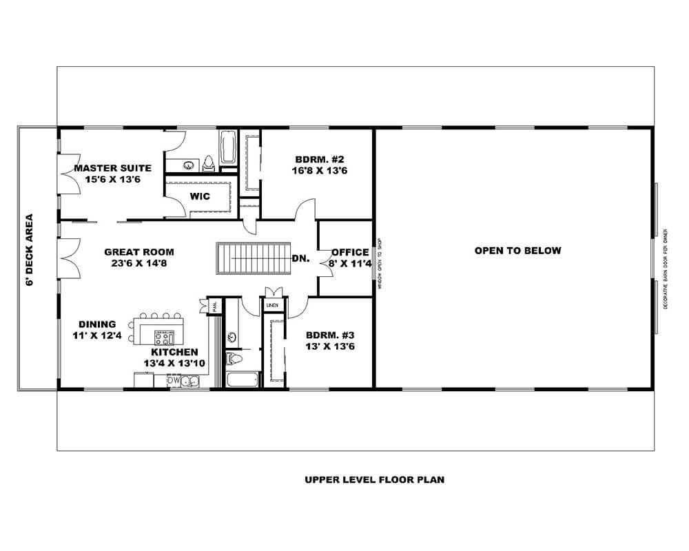
Welcome to the gallery of photos for a 1,920 Sq. Ft. Barn Style Home with Plenty of Garage/Storage Space. The floor plans are shown below:






In search of an exquisite fusion of rustic tranquility and contemporary comfort? Your search ends here with this remarkable barndominium!
To begin with, the living space spans an impressive 1,920 square feet, featuring an inviting open floor plan, three generously sized bedrooms, and a convenient home office.
The opulent master suite offers direct access to the deck, complemented by a spacious walk-in closet and a private ensuite bath.
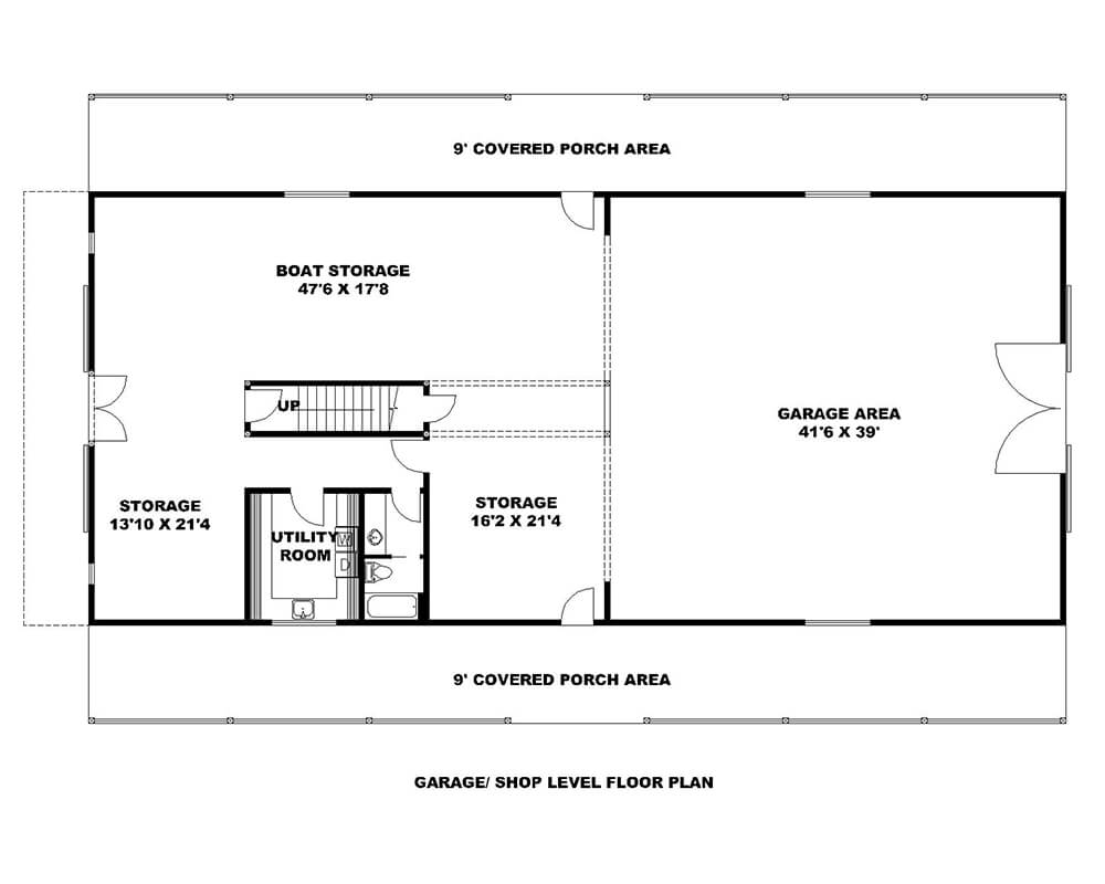
Let’s not overlook the distinctive feature that sets this barndominium apart — a lofty, double-height garage area, perfectly suited for a workshop, an art studio, or even just a secure parking spot for your vehicles.
As an added perk, the boat storage enhances the allure of this exceptional property.
=> Looking for custom Barndominium house plans? Click here to fill out our form, a member of our team will be in touch.
