3-Bedroom, Exclusive Barndominium with Man Cave Workshop in the Garage (Floor Plans)
Specifications
- Area: 4,272 sq. ft.
- Bedrooms: 3
- Bathrooms: 3.5
- Stories: 2
- Garages: 3
Welcome to the gallery of photos for an Exclusive Barndominium with a Man Cave Workshop in the Garage. The floor plans are shown below:
















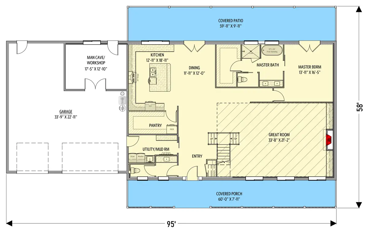
This exclusive Barndominium-style design features front and rear porches that extend the entire length of the house, utilizing conventional 2×6 framing instead of steel.
The design includes a three-car garage with a man cave/workshop area.
The great room is spacious, boasting a two-story ceiling and a cozy fireplace surrounded by built-in shelves.
The kitchen showcases U-shaped cabinetry that wraps around the island, and the adjacent dining area offers access to the picturesque rear porch.
On the main level, you’ll find a generously sized master bedroom with a barn door that opens to a luxurious five-fixture bathroom, complete with a freestanding tub.
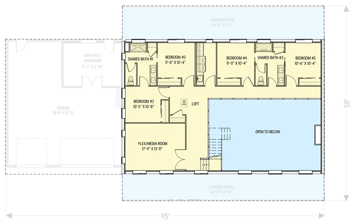
A double-sided staircase leads to the second level, where you’ll discover four secondary bedrooms. These bedrooms share Jack-and-Jill bathrooms and are connected by a catwalk-style hallway.
Additionally, there is a flex space on the second level that can be used as a media room or playroom, adding versatility to the design.
=> Looking for custom Barndominium house plans? Click here to fill out our form, a member of our team will be in touch.
