Single-Story, 3-Bedroom Farmhouse-Inspired Barndominium with Wraparound Porch (Floor Plan)
Specifications
- Area: 2,039 sq. ft.
- Bedrooms: 3
- Bathrooms: 2
- Stories: 1
- Garages: 3
Welcome to the gallery of photos for a single-story, three-bedroom Farmhouse-Inspired Barndominium with a Wraparound Porch. The floor plans are shown below:
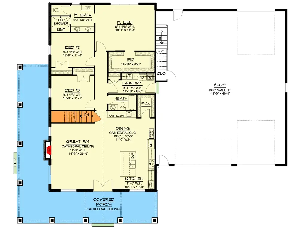
Main Floor Plan
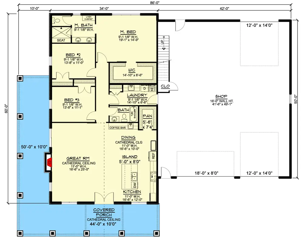
Optionally Finished Bonus Plan
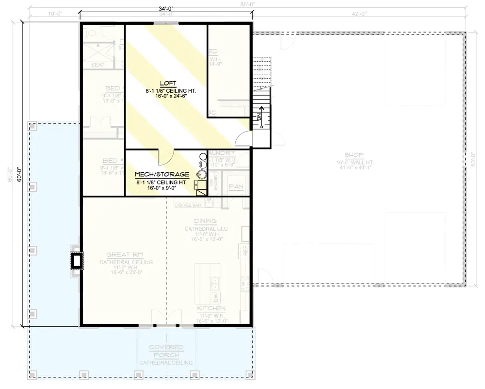
Main Level – Basement Foundation Plan
The front exterior of this Barndominium, inspired by a Farmhouse design, showcases a charming wraparound porch with wooden columns and sturdy rock pillars.
The spacious garage features sleek black side panels and is accompanied by a concrete driveway.
This picturesque covered porch captures a delightful angle view, with sturdy wooden columns and elegant rock pillars.
This is a rear view of the Farmhouse-style Barndominium, featuring a spacious wraparound porch that wraps around the entire structure, offering a picturesque view from the back.
The right portion of this Barndominium, inspired by Farmhouse design, includes a garage/workshop spanning 2,123 square feet.
It is equipped with front and rear overhead doors for convenient access. Inside the garage, there is a staircase leading to a loft on the second level, which can be utilized as an office or storage space.
Moving towards the front of the house, the wraparound porch leads to the main entrance through French doors.
Upon entering, you step into a combined great room, kitchen, and dining area. The kitchen boasts a 5′ by 8′ island and a coffee bar, while the dining area features a fireplace and a soaring cathedral ceiling.
On the left side of the house, two spacious bedrooms are situated across from a full bath and a laundry room with a door providing access to the garage.
The master bedroom is tucked away at the rear of the design, providing privacy. It includes a 4-fixture bathroom complete with a linen closet and a walk-in closet for ample storage.
The exterior of the Barndominium is finished with corrugated metal siding, adding to its unique appeal.
=> Looking for custom Barndominium house plans? Click here to fill out our form, a member of our team will be in touch.
