Double-Story, 3-Bedroom Barndominium-Style House with Garage Viewing Room (Floor Plans)

Specifications

  • Area: 3,508 sq. ft.
  • Bedrooms: 3
  • Bathrooms: 2.5
  • Stories: 2
  • Garages: 4

Welcome to the gallery of photos for a Barndominium-Style House with a Garage Viewing Room. The floor plans are shown below:

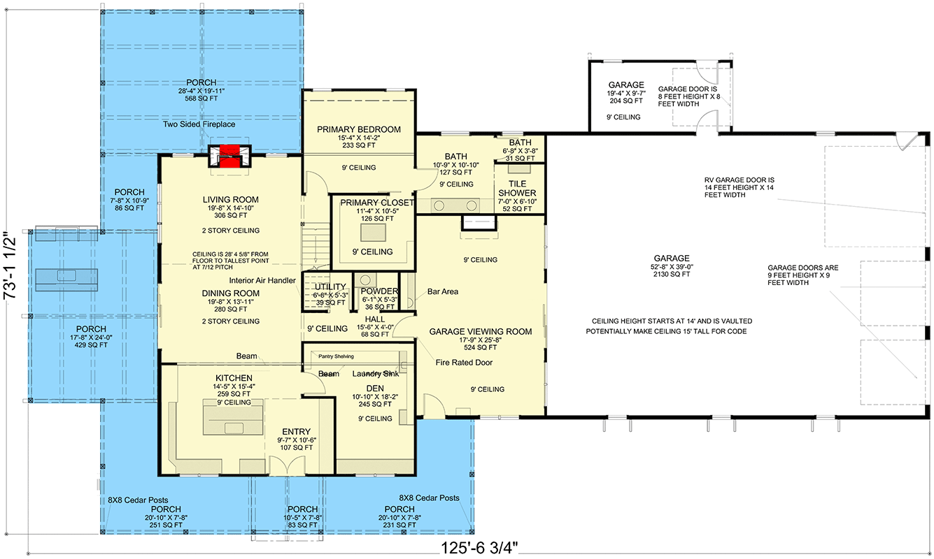
Main level floor plan
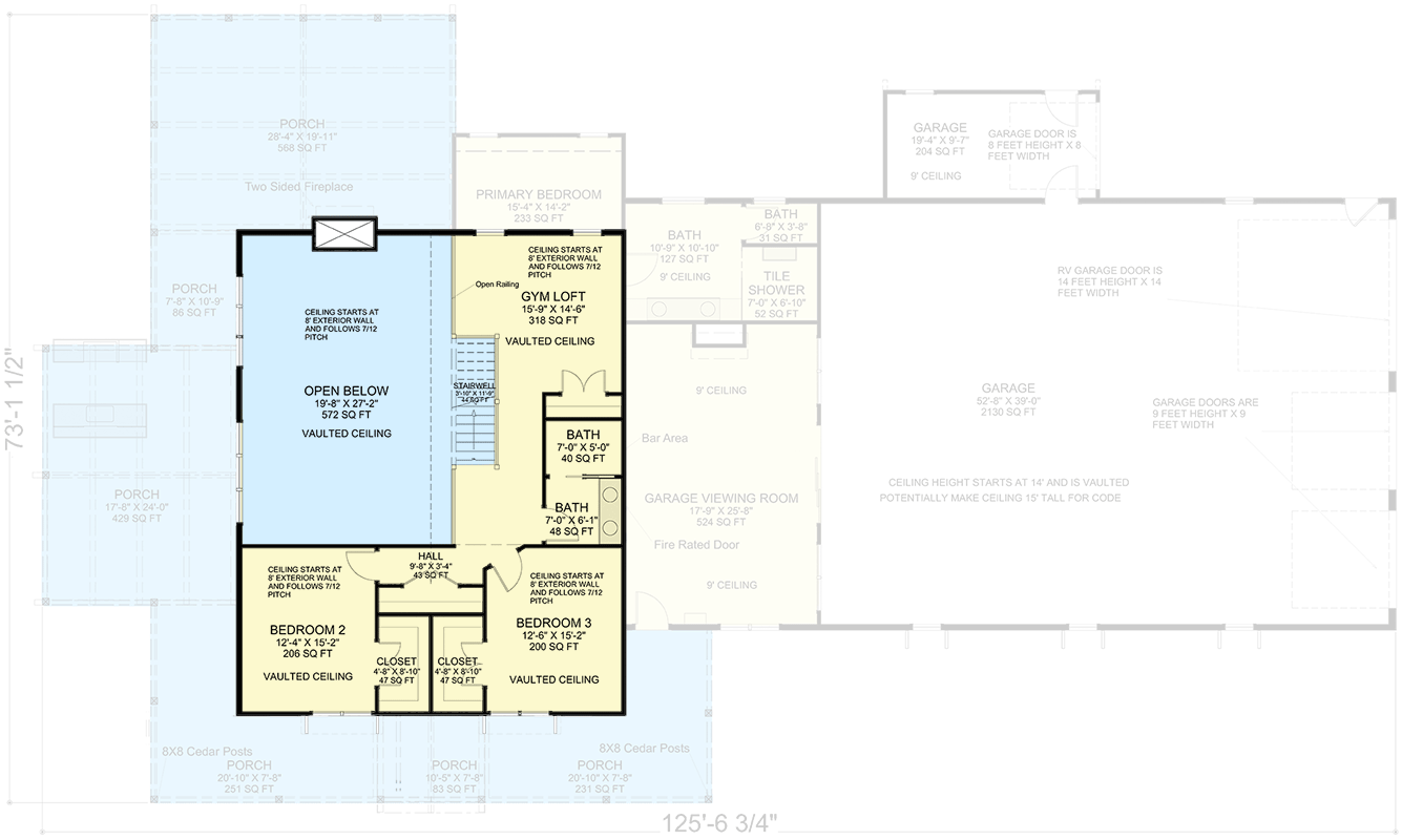
Second level floor plan
The facade view of this large barndominium-style home.
The barndominium house depicts a dark-walled theme with wooden beams and cedar posts surrounding it.
The front of the house features a wraparound porch and a large walkway.
The attached side garage can store up to four vehicles, with one of the bays large enough to let an RV in.
Let’s go right through the front door and see what awaits us indoors.
The generous living room features a fireplace, ample seating, and a high two-story ceiling.
Shiny marble countertops grace the clean and well-stocked kitchen.
The dining room table is wide enough for up to eight people.
The home’s wooden influences are also present in the master bedroom.
The shiny and clean master bathroom contains a free-standing tub and an open tiled shower area.
The other bedrooms are located upstairs, and they provide a comfortable experience to their occupants.
The garage viewing room can be customized to have its own fireplace, as well as entertainment and recreation areas.
Get Your FREE: Barndominium Floor Plan Package Now
Download our FREE barndo floor plan package for inspiration and ideas.
Get FREE Barndo Floor Plans

Introducing a remarkable house plan designed specifically for car enthusiasts, this barndominium-style home features 3 bedrooms and 2.5 bathrooms.

Boasting an expansive 2,134 square feet of garage space, it offers ample room for both work and showcasing your prized vehicles.

Notably, a garage viewing room is seamlessly integrated into the heated living area, providing a dedicated space to admire your automotive collection.

Enhancing the charm of this dwelling, a wrap-around porch gracefully envelops three sides of the house, creating an inviting outdoor sanctuary where you can revel in the fresh air.

The rear section of the porch presents a generous 588 square feet of space under a vaulted roof, complete with an outdoor fireplace that is shared with the living room indoors.

Complemented by the presence of 8×8 cedar posts, this feature contributes a rustic ambiance to the overall aesthetic.

Stepping inside, the combined living and dining room area greets you with its dramatic vaulted ceiling, cultivating an atmosphere of grandeur.

Upstairs, a loft provides delightful views overlooking this captivating space.

The kitchen is thoughtfully designed, featuring a sizable island with a sink and offering captivating vistas that extend to the fireplace adorning the far wall.

Conveniently located on the main floor, the primary bedroom boasts a spacious walk-in closet, ensuring your storage needs are met.

Meanwhile, two additional bedrooms can be found upstairs, providing comfortable accommodation for family members or guests.

=> Looking for custom Barndominium house plans? Click here to fill out our form, a member of our team will be in touch.

Get Your FREE: Barndominium Floor Plan Package Now
Download our FREE barndo floor plan package for inspiration and ideas.
Get FREE Barndo Floor Plans

Similar Posts

Leave a Reply

Your email address will not be published. Required fields are marked *