3-Bedroom Barndo-Style House with Massive 4-Car Garage and 2 Lofts (Floor Plans)

Specifications

  • Area: 4,601 sq. ft.
  • Bedrooms: 3
  • Bathrooms: 3.5
  • Stories: 2
  • Garages: 4

Welcome to the gallery of photos for a Barndo-Style House with a Massive 4-Car Garage and 2 Lofts. The floor plans are shown below:

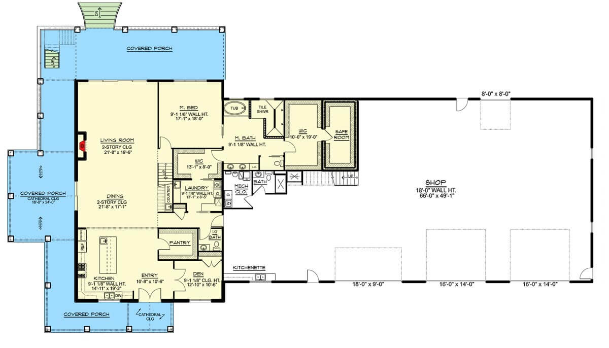
Main level floor plan
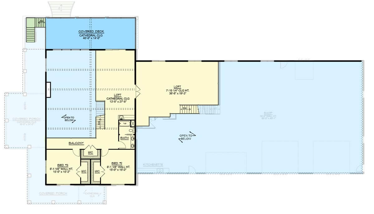
Second level floor plan
The facade view of this large barndominium-style house.
The attached garage is large enough to fit up to four vehicles. This space can also be converted into a shop.
Board-and-batten sidings grace the exterior of this barndominium house.
At the back of the house is a stunning two-story outdoor living area.
The massive porch area with plenty of seating can also be accessed from the side of the house.
Get Your FREE: Barndominium Floor Plan Package Now
Download our FREE barndo floor plan package for inspiration and ideas.
Get FREE Barndo Floor Plans

This house design follows a barndo-style aesthetic and boasts a colossal 4,296 square foot 4-car garage with a loft area that overlooks it, along with an additional loft that provides a view of the great room.

Moreover, the house itself offers over 3,000 square feet of heated living space with 3 bedrooms.

The central area of the house features an open design, highlighted by a two-story ceiling that stretches over the living and dining rooms.

The generously sized kitchen facilitates easy entertaining, while a serene den in close proximity offers a secluded spot for relaxation or as a convenient home office.

The master bedroom, located on the main level, includes a 5-fixture bathroom and a walk-in closet that connects to the laundry room.

Moving upstairs, the second and third bedrooms are symmetrical in layout, and a loft area provides a shared space for children’s activities. A set of French doors leads to a second loft that overlooks the garage area.

The expansive 4,296 square foot garage affords ample room for a workshop or storage, and it features an oversized, overhead door suitable for larger vehicles or lawn equipment.

For its exterior, the design specifies corrugated metal siding as the chosen finish.

=> Looking for custom Barndominium house plans? Click here to fill out our form, a member of our team will be in touch.

Get Your FREE: Barndominium Floor Plan Package Now
Download our FREE barndo floor plan package for inspiration and ideas.
Get FREE Barndo Floor Plans

Similar Posts

Leave a Reply

Your email address will not be published. Required fields are marked *