Double-Story, 3-Bedroom Barndominium House with 3 Garage Bays (Floor Plans)
Specifications
- Area: 2,227 sq. ft.
- Bedrooms: 3
- Bathrooms: 2.5
- Stories: 2
- Garages: 3
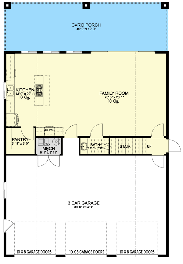
Welcome to the gallery of photos for a Barndominium House with 3 Garage Bays. The floor plans are shown below:
















Experience the luxury of over 2,200 square feet of living area in this remarkable 3-bedroom Barndominium design. The plan boasts three spacious garage bays, each featuring a 10′ by 8′ door for easy access.
With minimal walls on the main level, the living space feels open and breezy, seamlessly connecting the family room to the eat-in kitchen.
Through the grand oversized glass doors, the living area expands onto a sprawling 40′ by 12′ covered porch, offering an ideal spot to immerse yourself in the breathtaking surroundings.
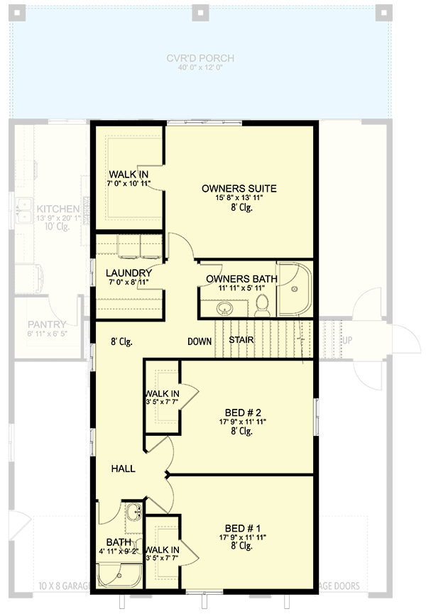
Upstairs, you’ll find three inviting bedrooms and a convenient laundry room.
The owner’s suite is accompanied by a generous closet and shares a full bathroom with neighboring rooms. Bedrooms 2 and 3 mirror each other in size and also share a well-appointed hall bath.
=> Looking for custom Barndominium house plans? Click here to fill out our form, a member of our team will be in touch.
