3-Bedroom Modern Barndominium (Floor Plans)

Specifications

  • Area: 2,178 sq. ft.
  • Bedrooms: 3
  • Bathrooms: 2
  • Stories: 1
  • Garages: 2

Welcome to the gallery of photos for a three-bedroom Modern Barndominium home. The floor plans are shown below:

Main level floor plan
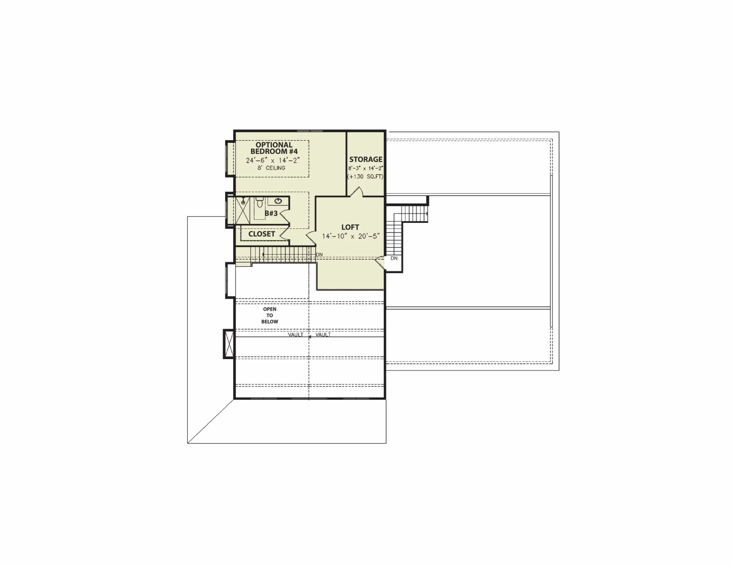
Second level floor plan
The facade view of this modern barndominium home features its attached garage.
Additional garage bays and doors are located at the back of the barndominium house.
At the side of the house, you can see an extension of the covered patio and a few dormers.
The L-shaped wraparound porch/patio is supported by wooden columns.
The compact main joins the great room, dining room, and kitchen together.
Relaxing seats are provided by the great room’s sofas, while seats for diners are presented in both the kitchen and dining areas.
Upstairs, the loft area can serve as another small living space.
The master bedroom is simply designed and decorated based on the room’s wooden accents.
Inside the master bathroom, the free-standing tub is strategically placed in the middle of the room’s two vanities.
Get Your FREE: Barndominium Floor Plan Package Now
Download our FREE barndo floor plan package for inspiration and ideas.
Get FREE Barndo Floor Plans

Introducing a contemporary barndominium, boasting an expansive garage equipped with all the essential amenities found in a traditional home.

This house design embraces an open concept, featuring a grand vaulted great room that warmly welcomes you upon entering through the front door.

The great room seamlessly connects to the dining area and kitchen, creating a harmonious flow throughout.

The master suite encompasses a private master bath and a spacious closet, offering both comfort and convenience.

Completing the main floor are two additional bedrooms, another bathroom, and a well-appointed laundry room.

For added versatility, an optional second floor presents a loft, two extra bedrooms, and a storage area, catering to various needs and preferences.

=> Looking for custom Barndominium house plans? Click here to fill out our form, a member of our team will be in touch.

Get Your FREE: Barndominium Floor Plan Package Now
Download our FREE barndo floor plan package for inspiration and ideas.
Get FREE Barndo Floor Plans

Similar Posts

Leave a Reply

Your email address will not be published. Required fields are marked *