3-Bedroom Barndominium-style House with Two-story Great Room (Floor Plans)

Specifications

  • Area: 2,350 sq. ft.
  • Bedrooms: 3
  • Bathrooms: 2.5
  • Stories: 2
  • Garages: 3

Welcome to the gallery of photos for a three-bedroom Barndominium-style House with a Two-story Great Room. The floor plans are shown below:

Main level floor plan
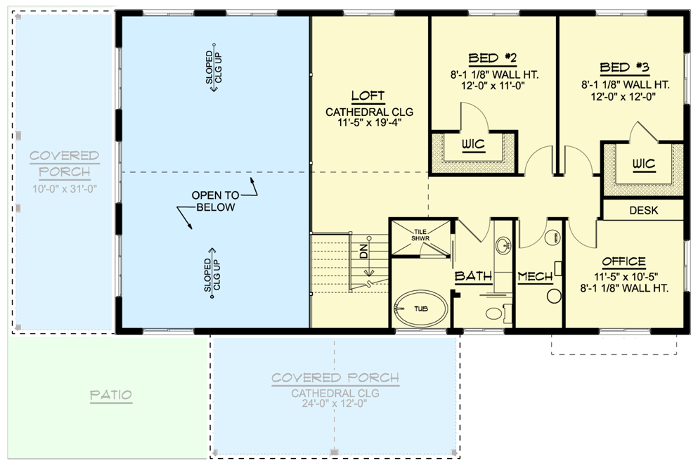
Second level floor plan
The facade view of this large barndominium-style house.
The house’s exterior shows white walls and board-and-batten sidings.
There’s a covered porch with ample seating at the front of the house.
At the house’s left elevation is another entry door to the home.
The garage bay is found on the right-hand side of the house.
Indoors, the great room and dining area come together in an interesting fusion.
The main area boasts a very tall two-story ceiling and lots of windows that add to its roomy environment.
If you prefer, the second-floor loft provides a stunning view of what’s downstairs.
Get Your FREE: Barndominium Floor Plan Package Now
Download our FREE barndo floor plan package for inspiration and ideas.
Get FREE Barndo Floor Plans

This 3-bedroom house plan features a Barndominium-style design with a ribbed metal roof, adding a unique touch to the exterior.

The great room, characterized by its tall ceilings, is filled with natural light and has a fireplace at its center.

Adjacent to the fireplace are two doors that open up to the dining area and connect the interior with the outdoor living space.

On the main level, you’ll find the master bedroom for added convenience, complete with pocket-door access to the ensuite bathroom.

Additionally, there is a laundry room that is conveniently located near a powder bath and provides access to the single garage bay.

As you ascend the stairs, a loft area welcomes you, offering a picturesque view of the great room below.

Bedrooms 2 and 3 each come with their own walk-in closet and share a compartmentalized bathroom.

Completing the second floor is a home office, featuring a built-in desk for your work needs.

The exterior of the house is finished with vinyl board and batten cement board siding, ensuring a durable and stylish appearance.

=> Looking for custom Barndominium house plans? Click here to fill out our form, a member of our team will be in touch.

Get Your FREE: Barndominium Floor Plan Package Now
Download our FREE barndo floor plan package for inspiration and ideas.
Get FREE Barndo Floor Plans

Similar Posts

Leave a Reply

Your email address will not be published. Required fields are marked *