4-Bedroom Wimberley Open Floor Barndominium Style House (Floor Plans)
Specifications
- Area: 2,200 sq. ft.
- Bedrooms: 4
- Bathrooms: 3
- Stories: 2
- Garages: 2
Welcome to the gallery of photos for the Wimberley Open Floor Barndominium Style House. The floor plans are shown below:




We are captivated by the refined simplicity of this transitional stunner, featuring 3-4 bedrooms and 3 baths within its 2,220 sq. ft. layout.
Blending the popular barndominium trend with timeless farmhouse elements, it satisfies our desire for familiarity. Embracing a harmonious blend of comfort, this residence combines vertical ribbed metal roofing with modern horizontal wood siding.
Delightful shed roof dormer windows peep over castle-like stacked stones.
Upon entering the foyer with its 9′ ceiling, guests can hang their coats, while a convenient linen closet is located near the secondary full bathroom.
To the left of the foyer, the office doubles as a guest room or a potential 4th bedroom, complete with an interior closet and an adjacent full hallway shower bathroom.
A single stairwell not only offers noise reduction but also utilizes the space beneath for extra storage or a clever hideaway filled with bedtime stories for the young ones.
The master of the house will relish the vaulted bedroom set back, boasting an ensuite dual vanity bathroom featuring an expansive walk-in shower. Additionally, a spacious walk-in closet provides a built-in shelving nook for storage.
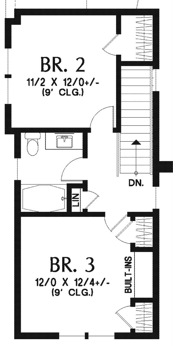
Ascending the stairs lead to the remaining 2 secondary bedrooms, with the front bedroom mirroring the size of the study below. These bedrooms share the third full bath.
The heart of this open-concept home boasts a vaulted ceiling sloping up to the front shed window, inviting in airy natural light.
A gas fireplace enhances the ambiance with ease. Accessible through 3 sets of sliding doors, the expansive covered back porch features a gently pitched roof, offering a central focal point.
The kitchen, a chef’s delight, is illuminated by windows above the sink. The generous island centers the cooktop, allowing for culinary involvement while staying connected with family.
Nearby, the pantry ensures convenient unloading of groceries from the 3-car side garage.
From the 3-car garage, a galley-style laundry area doubles as a mud room, equipped with a utility sink and a closet for coats and cleaning supplies.
An exterior door leads to the back patio, a perfect space for the family’s BBQ aficionado to tidy up.
=> Looking for custom Barndominium house plans? Click here to fill out our form, a member of our team will be in touch.
