3-Bedroom Diamond Creek Barndominium (Floor Plans)
Specifications
- Area: 3,021 sq. ft.
- Bedrooms: 3
- Bathrooms: 3
- Stories: 2
- Garages: 2
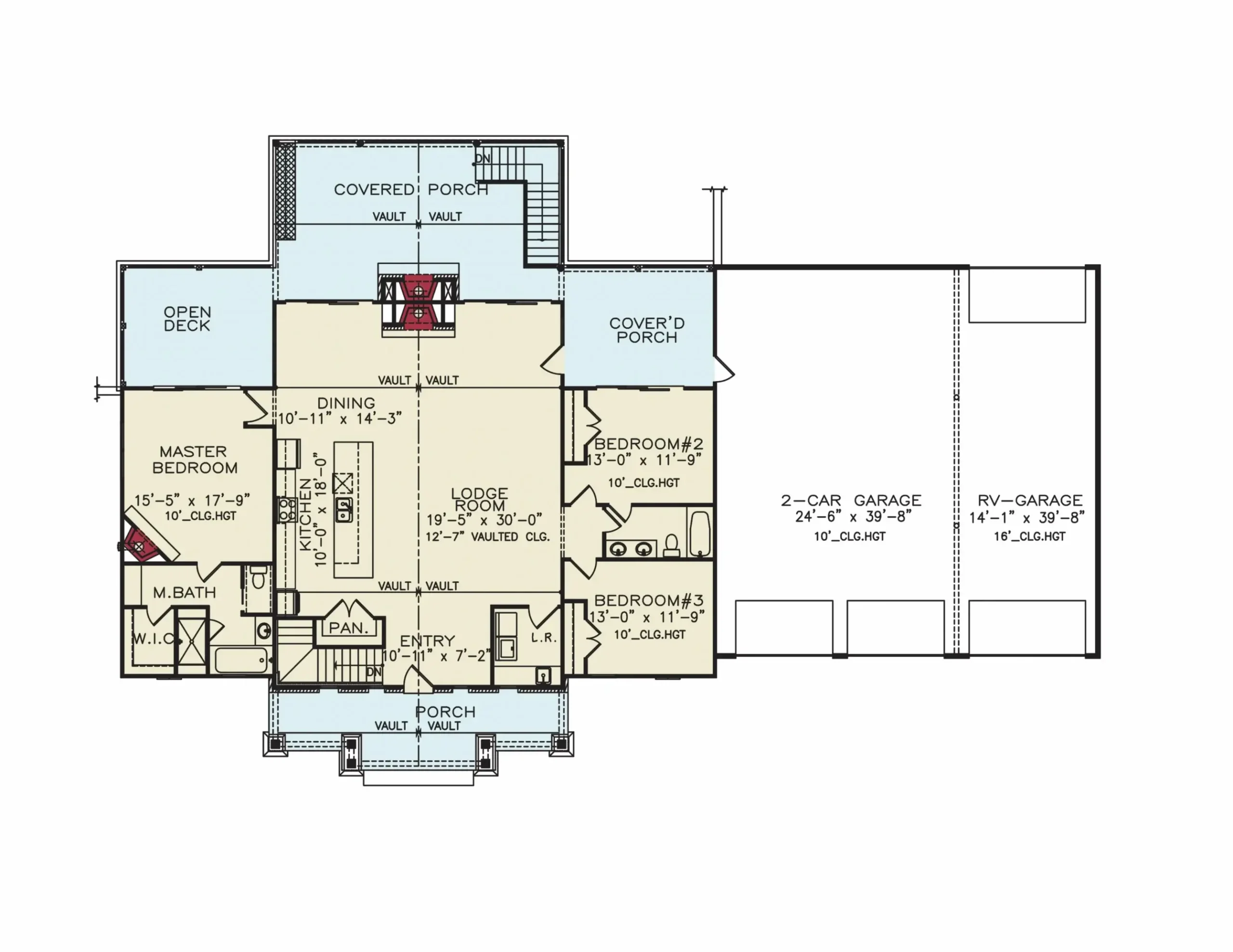
Welcome to the gallery of photos for the Diamond Creek Barndominium. The floor plans are shown below:


















Introducing a contemporary barndominium featuring an inviting open concept layout.
As you step inside, you’ll be greeted by a spacious vaulted lodge room, complete with a cozy fireplace, seamlessly connected to the kitchen and dining area.
The barndominium boasts a delightful covered porch, also equipped with its own fireplace.
The master bedroom offers a walk-in closet, an ensuite master bathroom, and convenient access to an open deck, perfect for enjoying the outdoors.
Additionally, there are two bedrooms that share a well-appointed bathroom, a practical laundry area, a 2-car garage, and an RV garage, all located on the main floor.
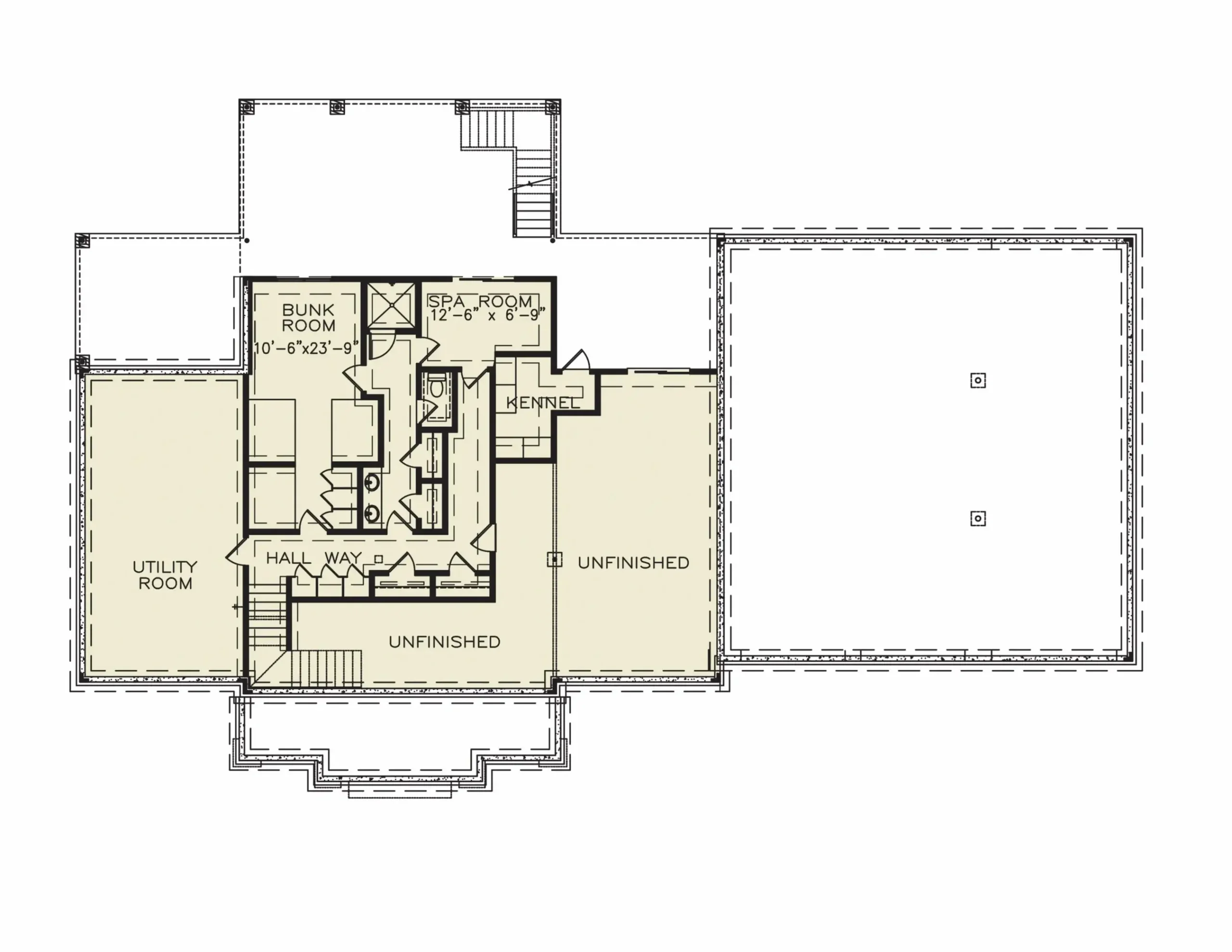
Descending to the basement level, you’ll find a utility room, a versatile bunk room, and a luxurious spa room.
Furthermore, there are numerous unfinished spaces in the basement that provide ample opportunities for customization, allowing you to transform them into any type of room or area to suit your preferences.
=> Looking for custom Barndominium house plans? Click here to fill out our form, a member of our team will be in touch.
