4-Bedroom Barndominium-Style House with RV-Friendly 1,555 Square Foot Garage (Floor Plans)
Specifications
- Area: 2,671 sq. ft.
- Bedrooms: 4
- Bathrooms: 2.5
- Stories: 2
- Garages: 3
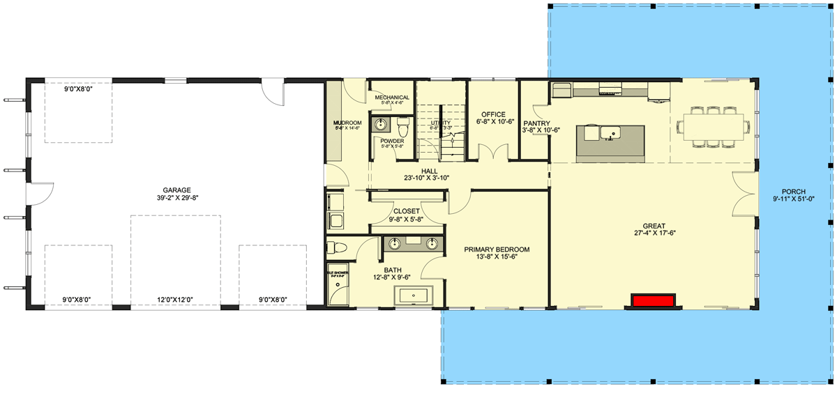
Welcome to the gallery of photos for a four-bedroom Barndominium-Style House with an RV-Friendly 1,555 Square Foot Garage. The floor plans are shown below:


















Presenting a 4-bedroom, 2.5-bathroom barndominium-style residence, resembling a barndominium and constructed using 2×6 framing.This spacious abode offers 2,671 square feet of heated living space. The attached 3-car garage boasts two bays equipped with 9′ by 8′ overhead doors, and one of these bays has the convenience of drive-through access.
The central bay is RV-friendly, featuring a generous 12′ by 12′ overhead door, providing an expansive 1,555 square feet of parking area.
Surrounding three sides of the home is a delightful porch, measuring 9’11” in depth, creating 1,217 square feet of covered outdoor space, perfect for relaxation and enjoyment.
Inside, an open concept floor plan greets you with a 2-story great room that seamlessly flows into the well-appointed kitchen, complete with a walk-in pantry and a spacious island. The adjacent dining room enhances the sense of openness.
A private home office awaits, tucked behind elegant French doors.
Conveniently positioned across the hall is the master bedroom, which offers direct access to the laundry room through a walk-in closet, adding an element of practicality.
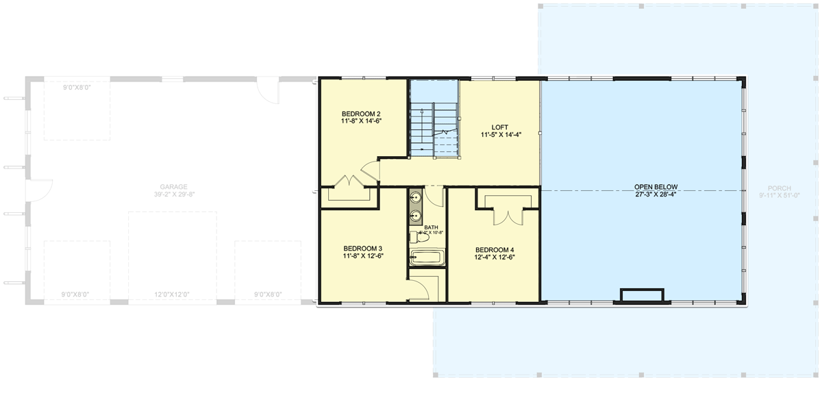
Upstairs, you will find three more bedrooms that share a well-appointed hall bathroom, featuring two vanities for added convenience.
Overlooking the floor below is a loft with an open rail design, adding to the home’s overall charm and appeal.
=> Looking for custom Barndominium house plans? Click here to fill out our form, a member of our team will be in touch.
